صفحه اصلی
خدمات
تعرفهها
آکادمی
درباره ما
تماس با ما
ورود همکار
ورود | ثبتنام
آییننامهها
صفحه اصلی
/
آییننامهها
/ مبحث هفدهم مقررات ملی ساختمان (سامانه گاز طبیعی در ساختمان)
مبحث هفدهم مقررات ملی ساختمان (سامانه گاز طبیعی در ساختمان)
۵ مهر ۱۴۰۴
116 بازدید
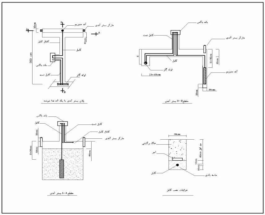
پیوست 5 شکلها
شکل شماره پ-5-1
شکل شماره پ-5-2
شکل شماره پ-5-3
شکل شماره پ-5-4
همه فصول
1-17 کلیات
۵ مهر ۱۴۰۴
2-17 تعاریف
۵ مهر ۱۴۰۴
3-17 گروهبندی ساختمانها
۵ مهر ۱۴۰۴
4-17 طراحی سامانه گاز ساختمان
۵ مهر ۱۴۰۴
5-17 تامین هوای احتراق
۵ مهر ۱۴۰۴
6-17 اجرای لولهکشی گاز
۵ مهر ۱۴۰۴
7-17 بازرسی، کنترل کیفیت، آزمایش، صدور تاییدیه، تحویل و تزریق گاز
۵ مهر ۱۴۰۴
8-17 نصب، راهاندازی و بهرهبرداری از سامانه گاز ساختمان
۵ مهر ۱۴۰۴
9-17 کلیات
۵ مهر ۱۴۰۴
10-17 مشخصات مواد و مصالح مصرفی، برآورد، طراحی و انتخاب مصالح سیستم لولهکشی گاز
۵ مهر ۱۴۰۴
11-17 اجرای لولهکشی گاز
۵ مهر ۱۴۰۴
12-17 عایقکاری لولهها
۵ مهر ۱۴۰۴
13-17 جوشکاری
۵ مهر ۱۴۰۴
14-17 حفاظت کاتدی
۵ مهر ۱۴۰۴
15-17 کنترل کیفیت، آزمایش، بازرسی، صدور تاییدیه، تحویل و تزریق گاز در سیستم لولهکشی گاز
۵ مهر ۱۴۰۴
پیوست 1 راهنمای ایمنی
۵ مهر ۱۴۰۴
پیوست 2 نمونه محاسبات
۵ مهر ۱۴۰۴
پیوست 3 ایمنی و ضوابط بهرهبرداری و نگهداری از سیستم لولهکشی گاز
۵ مهر ۱۴۰۴
پیوست 4 جدولها
۵ مهر ۱۴۰۴
پیوست 5 شکلها
۵ مهر ۱۴۰۴
پیوست ۶ دستهبندی نوع دستگاههای گازسوز
۵ مهر ۱۴۰۴
واژهنامه
۸ مهر ۱۴۰۴
مشخصات آییننامه
مبحث هفدهم مقررات ملی ساختمان (سامانه گاز طبیعی در ساختمان)
مقررات ملی ساختمان
تعداد فصول:
22 فصل
سال انتشار:
1403
ویرایش:
پنجم
جستجو در آییننامهها
جستجو
ناشرین آییننامهها
مقررات ملی ساختمان
قوانین، آییننامهها، شیوهنامهها، دستورالعملها و بخشنامههای ساختمان
نظام مهندسی ساختمان
ضوابط، بخشنامهها، نشریهها و معیارهای فنی نظام مهندسی ساختمان
مرکز تحقیقات راه، مسکن و شهرسازی
قوانین، آییننامهها و بخشنامههای مرکز تحقیقات راه، مسکن و شهرسازی
سازمان برنامه و بودجه کشور
ضوابط، بخشنامهها و قوانین سازمان برنامه و بودجه کشور
سازمان ملی استاندارد ایران
استانداردهای کمیتههای مختلف سازمان ملی استاندارد ایران
سازمان تامین اجتماعی کشور
مقررات و آییننامههای درمانی و بیمهای سازمان تامین اجتماعی کشور
ضوابط فنی و اجرایی شهرداریها
ضوابط، بخشنامهها، نشریهها و معیارهای فنی شهرداریهای کشور
ضوابط فنی و اجرایی وزارت بهداشت
ضوابط، بخشنامهها، نشریهها و معیارهای فنی وزارت بهداشت
ضوابط فنی و اجرایی وزارت نیرو-آبفا
ضوابط، بخشنامهها، نشریهها و معیارهای فنی وزارت نیرو-آبفا
ضوابط سازمان بنادر و دریانوردی
ضوابط، بخشنامهها، نشریهها و معیارهای فنی سازمان بنادر و دریانوردی
ضوابط فنی و اجرایی وزارت نفت
ضوابط، بخشنامهها، نشریهها و معیارهای فنی وزارت نفت
قوانین و مقررات مالیاتی کشور
قوانین، مقررات، ضوابط و دستورالعملهاى مالیاتى سازمان مالیات كشور
تازهترین آییننامهها
مشخصات فنی عمومی کارهای ساختمانی (نشریه شماره 55) - ویرایش سوم 1403
سازمان برنامه و بودجه کشور
مبحث اول مقررات ملی ساختمان (تعاریف)
مقررات ملی ساختمان
مبحث دوم مقررات ملی ساختمان (نظامات اداری)
مقررات ملی ساختمان
مبحث سوم مقررات ملی ساختمان (حفاظت ساختمانها در مقابل حریق)
مقررات ملی ساختمان
مبحث چهارم مقررات ملی ساختمان (الزامات عمومی ساختمان)
مقررات ملی ساختمان
مبحث پنجم مقررات ملی ساختمان (مصالح و فرآوردههای ساختمانی)
مقررات ملی ساختمان
مبحث ششم مقررات ملی ساختمان (بارهای وارد بر ساختمان)
مقررات ملی ساختمان
آییننامههای تصادفی
راهنمای طراحی و اجرای دیوارهای بنایی محوطه
مقررات ملی ساختمان
دستورالعمل بهسازی لرزهای ساختمانهای موجود (نشریه شماره 360)
سازمان برنامه و بودجه کشور
فهرست بهای واحد پايه رشته شبكه توزيع آب سال 1403
سازمان برنامه و بودجه کشور
راهنمای طراحی و ضوابط اجرایی بهسازی ساختمانهای بتنی موجود با استفاده از مصالح تقویتی FRP (نشریه شماره 345)
سازمان برنامه و بودجه کشور
فهرست بهای واحد پايه رشته پسماند 1403
سازمان برنامه و بودجه کشور
راهنمای روشها و شیوههای بهسازی لرزهای ساختمانهای موجود و جزئیات اجرایی (نشریه شماره 524)
سازمان برنامه و بودجه کشور
مبحث بیست و سوم مقررات ملی ساختمان (الزامات ترافیکی ساختمان)
مقررات ملی ساختمان
تازهترین فصلها
واژهنامه
مبحث هفدهم مقررات ملی ساختمان (سامانه گاز طبیعی در ساختمان)
پیوست ۶ دستهبندی نوع دستگاههای گازسوز
مبحث هفدهم مقررات ملی ساختمان (سامانه گاز طبیعی در ساختمان)
پیوست 5 شکلها
مبحث هفدهم مقررات ملی ساختمان (سامانه گاز طبیعی در ساختمان)
پیوست 4 جدولها
مبحث هفدهم مقررات ملی ساختمان (سامانه گاز طبیعی در ساختمان)
پیوست 3 ایمنی و ضوابط بهرهبرداری و نگهداری از سیستم لولهکشی گاز
مبحث هفدهم مقررات ملی ساختمان (سامانه گاز طبیعی در ساختمان)
پیوست 2 نمونه محاسبات
مبحث هفدهم مقررات ملی ساختمان (سامانه گاز طبیعی در ساختمان)
پیوست 1 راهنمای ایمنی
مبحث هفدهم مقررات ملی ساختمان (سامانه گاز طبیعی در ساختمان)